top of page
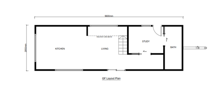
TH96294
9.6X2.94M
KITSET DETAILS
2
Bedrooms
Bathrooms
1
Roof Type
Mono
Roof Pitch
3°
Our SmartFraming kitsets come with everything you need to assemble them with ease. Each kitset includes wall frames, roof frame, assembly screws for secure connections, and plastic service hole grommets for safe and tidy wiring and plumbing. To make the process even easier, we provide a Construction Manual to guide you every step of the way. Additionally, we can supply a floor panel system, roof purlins, and ceiling battens upon request to further support your build.


ENQUIRE

bottom of page





